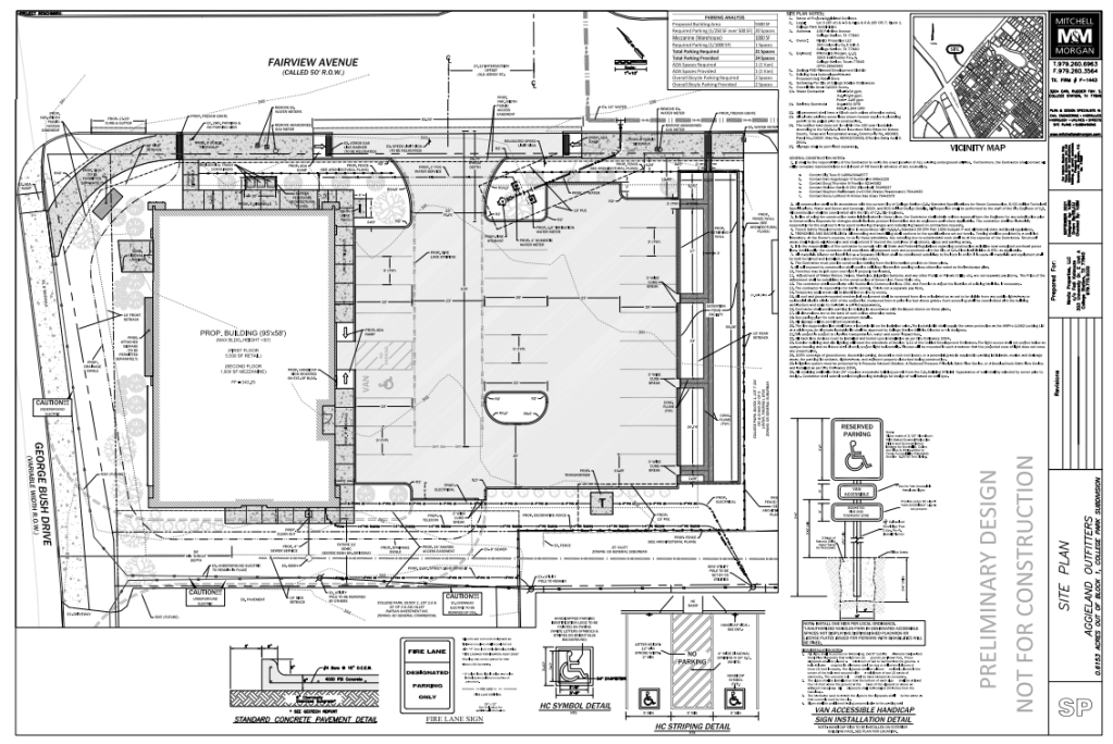
Aggieland Outfitters has submitted a site plan to the city of College Station for a new 6,500 square-foot store at George Bush Drive and Fairview Avenue. The planned store will have 5,500 square-foot first floor and a 1,000 square-foot mezzanine. Aggieland Outfitters has been a leader in the Aggie gifts business since 1992. From dresses, t-shirts, polos, and caps, to tailgating supplies, office decorations, and kids clothing, if it’s Texas A&M related, they’ve either got it, or we’ll get it. They take pride in providing the latest in fashion, service, and unique products.
David Flash (david.flash@gmail.com) is a marketing executive and digital media publisher for Big Bend Times, the media outlet with the largest audience in Texas's Transpecos region. With over ten years in sales and marketing, he excels in omnichannel marketing strategies that boost growth, revenue, and customer loyalty in various industries. Flash earned a Master of Science in Digital Audience Strategy from Arizona State University, a Bachelor of Arts in History with a Business Minor from The University of Texas at Austin, and a certificate in Sales Development Science from Texas Tech University. He holds certifications in email marketing, social media marketing, and Google Ads, showcasing his expertise in leveraging digital platforms for marketing success.
View all posts by David Flash