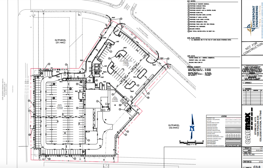
CarMax, the nation’s largest auto retailer, has submitted site plans for a new dealership in south College Station. According to the site plans submitted to the City of College Station, the new CarMax will be at 1320 Pavilion Avenue, near Cooper’s Old Time Pit Bar-B-Que.
David Flash (david.flash@gmail.com) is a marketing executive and digital media publisher for Big Bend Times, the media outlet with the largest audience in Texas's Transpecos region. With over ten years in sales and marketing, he excels in omnichannel marketing strategies that boost growth, revenue, and customer loyalty in various industries. Flash earned a Master of Science in Digital Audience Strategy from Arizona State University, a Bachelor of Arts in History with a Business Minor from The University of Texas at Austin, and a certificate in Sales Development Science from Texas Tech University. He holds certifications in email marketing, social media marketing, and Google Ads, showcasing his expertise in leveraging digital platforms for marketing success.
View all posts by David Flash